Dieckmann Immobilien GmbH
Regionalleitung Heinz von Heiden GmbH Massivhaus
Regionen Nordrhein-Westfalen & Hessen
Tel.: +49 (0) 23 04 - 95 29 80
E-Mail: info@heinzvonheiden-west.de
Internet: www.heinzvonheiden-west.de
 

Ihr Neubau mit Keller und Grundstück in Windeck-Dattenfeld!

Objektübersicht

Objektart   Einfamilienhaus
Adresse   51570 Windeck / Dattenfeld
Objektnummer   1948
Zimmerzahl   4
Wohnfläche (ca.)   135,51 m²
Grundstücksfläche (ca.)   800 m²
Kaufpreis   502.800,- €
Anzahl Etagen   1
Bauweise   Massiv
Garage   ja
Anzahl Stellplätze   2
Freiplatz   Anzahl 1
Garage   Anzahl 1
Wesentlicher Energieträger   Luft-/Wasser-Wärmepumpe
Unterkellert   nein
Schlafzimmer   3
Badezimmer   1
WC   1
Küche   offene Küche
Heizung   Fußbodenheizung
Befeuerung   Luft-/Wasser-Wärmepumpe
Gäste-WC   ja
Zustand   projektiert

Objektbeschreibung

Neubau am Park - Einfamilienhaus mit Keller in Windeck

In ruhiger Lage direkt am Park entsteht dieses freistehende Einfamilienhaus mit voll nutzbarem Keller - geplant nach dem bewährten Hauskonzept S620 von Heinz von Heiden. Die klare Raumaufteilung auf drei Etagen, moderne Haustechnik und ein komfortables Wohnumfeld machen dieses Haus zur idealen Wahl für alle, die solide bauen und langfristig denken.

Gebaut wird das Haus von der
Heinz von Heiden GmbH Massivhäuser,
Chromstraße 12, 30916 Isernhagen
in massiver Bauweise (Stein auf Stein).

Zur geplanten Ausstattung gehören:
Fußbodenheizung, Luft-Wärmepumpe, Photovoltaik-Anlage, Lüftungsanlage, dreifach verglaste Fenster, geflieste Bäder und ein voll unterkellerter Bereich für zusätzliche Nutzfläche.

Das Haus wird schlüsselfertig errichtet - alle wesentlichen Leistungen bis zur bezugsfertigen Übergabe sind enthalten. Lediglich Wand- und Bodenbeläge in Wohn- und Schlafräumen bringen Sie selbst ein. So behalten Sie die kreative Freiheit bei gleichzeitigem Planungs- und Kostenschutz.

Das Grundstück liegt in einer gewachsenen Anwohnerstraße - ruhig, grün und mit direktem Zugang zum Park.

Wichtig für Ihre Planung:
Im Preis enthalten sind der Grundstückskaufpreis und der Bau des Hauses inkl. Keller. Nicht enthalten sind Hausanschlusskosten, zusätzliche Erdarbeiten, Baustrom und Bauwasser, Außenanlagen, Grunderwerbsteuer, Notar-, Baugenehmigungs- und Vermessungskosten sowie Garagen und Sonderausstattungen (sofern nicht explizit genannt).

Alle Informationen und Preise sind sorgfältig zusammengestellt. Dennoch behalten wir uns Irrtümer vor. Sämtliche Darstellungen zeigen Ausstattungsvarianten.

Interesse?
Fordern Sie jetzt das vollständige Exposé an - mit Grundrissen, Ausstattungsdetails und Preisangaben. Wir freuen uns auf Ihre Anfrage.

Ausstattung

Das Neubauprojekt verfügt über folgende Ausstattungsmerkmale:

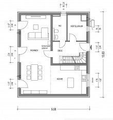
Räume im Erdgeschoss
(Wohnflächenangaben gem. WoFlV)
- Wohnzimmer: 37,99 m²
- Küche: 16,17 m²
- WC: 5,41 m²
- Diele: 8,23 m²
- Abstellraum: 7,09 m²

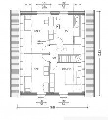
Räume im Obergeschoss
(Wohnflächenangaben gem. WoFlV)
- Schlafzimmer: 13,72 m²
- Kinderzimmer I: 13,67 m²
- Kinderzimmer II: 15,79 m²
- Bad: 10,21 m²
- Flur: 5,64 m²

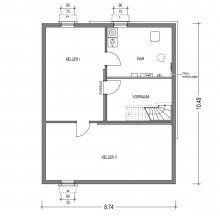
Räume im Kellergeschoss
- Kellerraum I: 23,46 m²
- Kellerraum II: 30,48 m²
- Hausanschlussraum: 13,83 m²
- Vorraum: 9,35 m²

Nun ein paar technische Daten:
- geheizt wird mit einer Luft-Wärme-Pumpe
- Clever vorgeplante Grundrisse
- PV-Anlage mit 10 Elementen und 4,45 kWp
- Fußbodenheizung
- 3-fach verglaste Fenster, Kunststoff
- Lüftungsanlage
- Bäder und Gäste-WC gefliest
- Sanitärobjekte (WC, Waschbecken, Badewanne und Dusche)
- Innentüren
- Einschubtreppe zum Dachboden
- massive Bauweise / Stein auf Stein
- Außenwände: 24cm Hochlochziegel mit 16 cm Dämmplatten und hydrophobiertem Edelstrukturputz durchgefärbt in der Farbe Weiß.
- Pfettendach mit Braas Dacheindeckung
- Bodenplatte (WU Beton)

Lage

Dattenfeld ist ein Ortsteil der Gemeinde Windeck im nordrhein-westfälischen Rhein-Sieg-Kreis.
Neben der mit ihren zwei Türmen volkstümlich als Siegtaldom bezeichneten katholischen Kirche St. Laurentius ist die Burg Dattenfeld sehenswert. Im Ort gibt es die Ernst-Moritz-Roth-Grundschule und den Kindergarten Regenbogenland.

Sonstiges

Allgemeine Geschäftsbedingungen (AGB)
1.Allgemeine Informationen Die im Exposé bereitgestellten Informationen dienen ausschließlich allgemeinen Informationszwecken über das projektierte Neubauvorhaben. Zur Ermittlung der hier ausgewiesenen grundstücksbezogenen Kosten haben wir auf vergleichbare Objekte zurückgegriffen. Es bedarf der gemeinsamen objektbezogenen Abstimmung dieser Kosten. Alle Angaben sind sorgfältig ermittelt worden; dennoch behalten wir uns ausdrücklich den Abverkauf und Irrtümer vor. Trotz sorgfältiger Prüfung und regelmäßiger Aktualisierung übernehmen wir keine Gewähr für die Richtigkeit, Vollständigkeit und Aktualität der Informationen.

2.Unverbindlichkeit Die dargestellten Pläne, Zeichnungen, Visualisierungen, Beschreibungen und Angaben zu den Bauvorhaben sind unverbindlich und dienen lediglich der Veranschaulichung. Änderungen und Anpassungen bleiben vorbehalten. Verbindliche Informationen erhalten Sie ausschließlich in den offiziellen Angebots- und Vertragsunterlagen.

3.Keine Vertragsgrundlage Die Informationen in den Exposés stellen kein Vertragsangebot dar und sind nicht als verbindliches Angebot zu verstehen. Ein rechtsverbindlicher Vertrag kommt erst durch die Unterzeichnung der entsprechenden Vertragsdokumente zustande.

4.Haftungsausschluss Wir übernehmen keine Haftung für etwaige direkte oder indirekte Schäden, die durch die im Exposé bereitgestellten Informationen entstehen. Dies gilt insbesondere für Schäden, die durch das Vertrauen auf die Richtigkeit der Informationen oder durch die Nutzung fehlerhafter oder unvollständiger Informationen verursacht wurden.

5.Änderungen Wir behalten uns das Recht vor, die bereitgestellten Informationen jederzeit und ohne vorherige Ankündigung zu ändern, zu ergänzen oder zu entfernen.

6.Kontakt Für verbindliche Auskünfte oder individuelle Beratung wenden Sie sich bitte direkt an unser Vertriebsteam oder besuchen Sie unsere Vertriebsbüros und Musterhäuser.


Dieckmann Immobilien GmbH,
Regionalleitung West - Heinz von Heiden
Letmather Str. 123, 58239 Schwerte

www.dieckmann-immobilien.de

Kontaktinformation

Dieckmann Immobilien GmbH
Regionalleitung Heinz von Heiden GmbH Massivhaus
Regionen Nordrhein-Westfalen & Hessen

Rathausstraße 19
58239 Schwerte

Tel.: +49 (0) 23 04 - 95 29 80
E-Mail: info@heinzvonheiden-west.de
Internet: www.heinzvonheiden-west.de

Ihr Ansprechpartner

Ansprechpartnerfoto



Telefon: 00492304952980
Telefax: 004923049529818
neubau@immo-dieckmann.de
Heinz von Heiden Vertrieb West

Grundstück Ihr Neubau mit Keller und Grundstück in Windeck-Dattenfeld!
Grundstück 
Grundstück Ihr Neubau mit Keller und Grundstück in Windeck-Dattenfeld!
Grundstück 
Lageplan Ihr Neubau mit Keller und Grundstück in Windeck-Dattenfeld!
Lageplan 
Visualisierung Ihr Neubau mit Keller und Grundstück in Windeck-Dattenfeld!
Visualisierung 
Erdgeschoss Ihr Neubau mit Keller und Grundstück in Windeck-Dattenfeld!
Erdgeschoss 
Dachgeschoss Ihr Neubau mit Keller und Grundstück in Windeck-Dattenfeld!
Dachgeschoss 
Kellergeschoss Ihr Neubau mit Keller und Grundstück in Windeck-Dattenfeld!
Kellergeschoss